
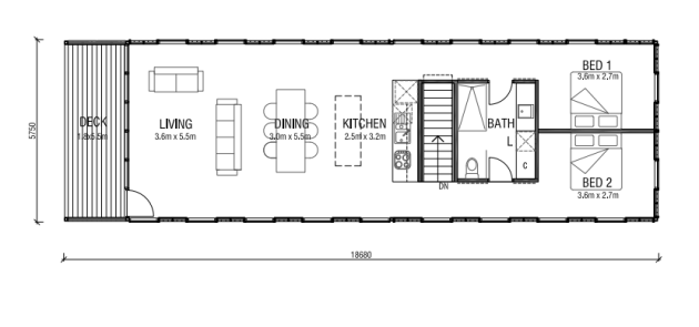
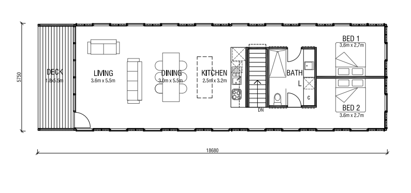
Was browsing the interwebs today and came across this interesting site offering kit homes [ http://arkit.com.au ]. Definitely a good option for getting a place up and running on a vacant block of land quick and ceaselessly (well sort of).
Their products come pre built with all electrical and plumbing already done. Most kit homes you need a builder to put it together for you. Which increases the complexity of getting a home up quite a bit. Will need to project manage it and if you don’t have experience in doing this or know the dependancies of a building a home then your budget can quickly get blown out.
Could be an option in the future to buy a new block of land to vacation on and maybe time share with some friends.



Leave a comment